INGENIERIA CIVIL
Buscamos la solución óptima a las necesidades técnico-económicas que se plantean en la empresa a la hora de emprender un proyecto de inversión. Confeccionamos legajos completos para cada proyecto que incluyen estudio de viabilidad técnica y económica, anteproyectos, fotomontajes, proyecto civil, instalaciones, planillas de cotización de materiales y mano de obra, y posterior a ello, la dirección o conducción técnica y el acompañamiento permanente al cliente hasta la culminación de la obra.
- Administración, Conducción, Supervisión y Dirección Técnica.
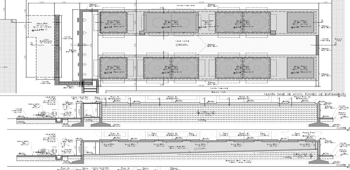
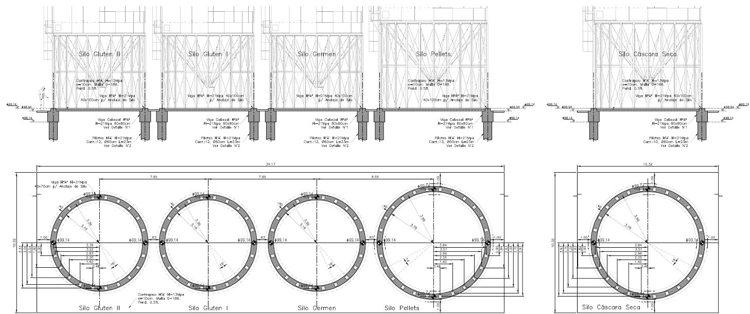
- Sistemas de fundación
- Pisos industriales y Paquetes Estructurales
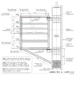
- Estructuras de Hormigón Armado
- Estructuras Metálicas
- Estructuras Mampostería Armada
- Movimientos de suelo
