Agrimensura
Ejecutamos trabajos de agrimensura en todo el país. Mediante equipos robotizados y sus correspondientes programas, procesamos la información, brindando al cliente un trabajo completo según sus necesidades.
-
-
Planialtimetría: Arroyo Seco, Santa Fe.
Comitente: ARCOR
Ampliar
-
-
Planialtimetría Choele Choel, Rio Negro.
Comitente: LA CAMPAGNOLA.
Ampliar
-
-
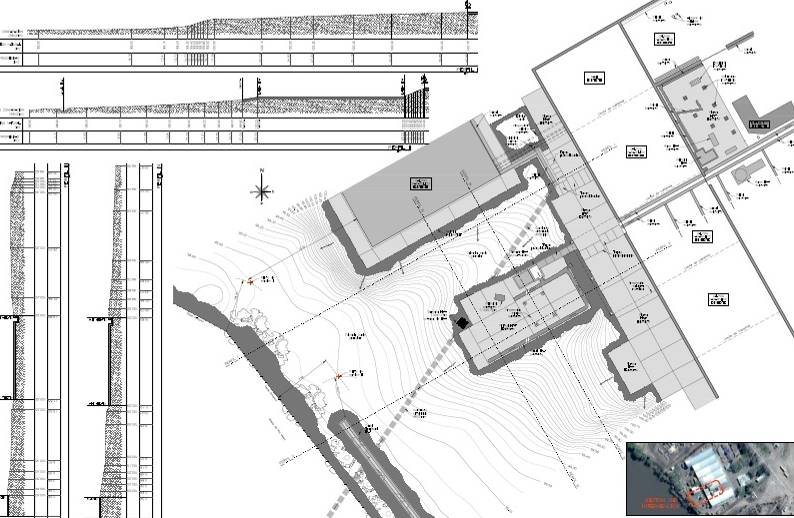
Planialtimetría Complejo Bagley Salto, Buenos Aires.
Comitente: BAGLEY
Ampliar
-
-
Planialtimetría Complejo Bagley Salto, Buenos Aires.
Comitente: BAGLEY
Ampliar
-
-
Planialtimetría La Juanita, Córdoba.
Comitente: PRIVADO.
Ampliar imagen 1
Ampliar imagen 2
-
-
Planialtimetría Complejo Frutos de Cuyo, San Juan.
Comitente: ARCOR.
Ampliar
